Ospedaletti

Dans vente
4 ou plus pièces
Ospedaletti
1 150 000 €
Description
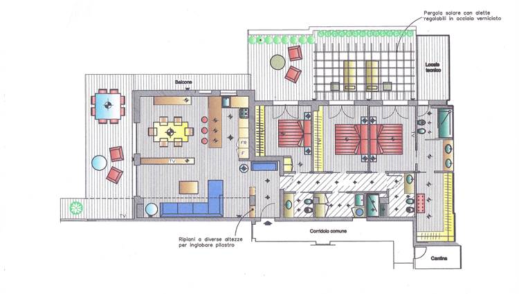
Dans un petit immeuble à deux pas des plages, appartement de luxe récemment rénové avec des matériaux nobles et pas encore habité de 160 mètres carrés comprenant:
entrée, séjour avec cuisine ouverte donnant sur la terrasse exposée sud avec vue magnifique sur la mer, coin chambre à coucher composé de 3 chambres à coucher et 3 salles de bain plus buanderie et dressing pour la chambre principale.
Terrasse de 80 m² avec vue sur la mer, en partie couverte par un pergotenda.
Principales caractéristiques
Code:
V000340
Ville:
Ospedaletti
Catégorie:
4 ou plus pièces
Chambres:
6
Chambres:
3
Salles de bains:
3
Mq:
180
Voiture places:
1
Terrasses:
1
mq Terrasse:
80
Année de rénovation:
2019
Note de l'énergie:
Dans la phase d'évaluation
État immeuble:
Nouveau
Degré:
Élégant
Position:
Mer
Panorama:
Vue Mer
Position:
Sud Ouest
Type de résidence:
Double
Type Cuisine:
à vue
Chauffage:
Chaufage individuel
Tipo Impianto:
Aux sols
Eau Chaude:
Autonome
Sol salon:
Parquet
Sol chambre à coucher:
Parquet
Accessoires
Antivol
Climatisation
Ascenseur
Coffre-fort
Double vitrage
Fibre optique
Système Domotique
Blanchisserie
Porte Blindée
Stores électriques
Interphone vidéo
Demande d'information
Envoyer
Cookie preference