Sea-view penthouse on Via Romana

for sale
Attic
Bordighera (via Romana)
1,100,000 €
Description
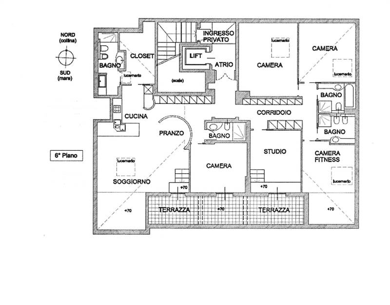
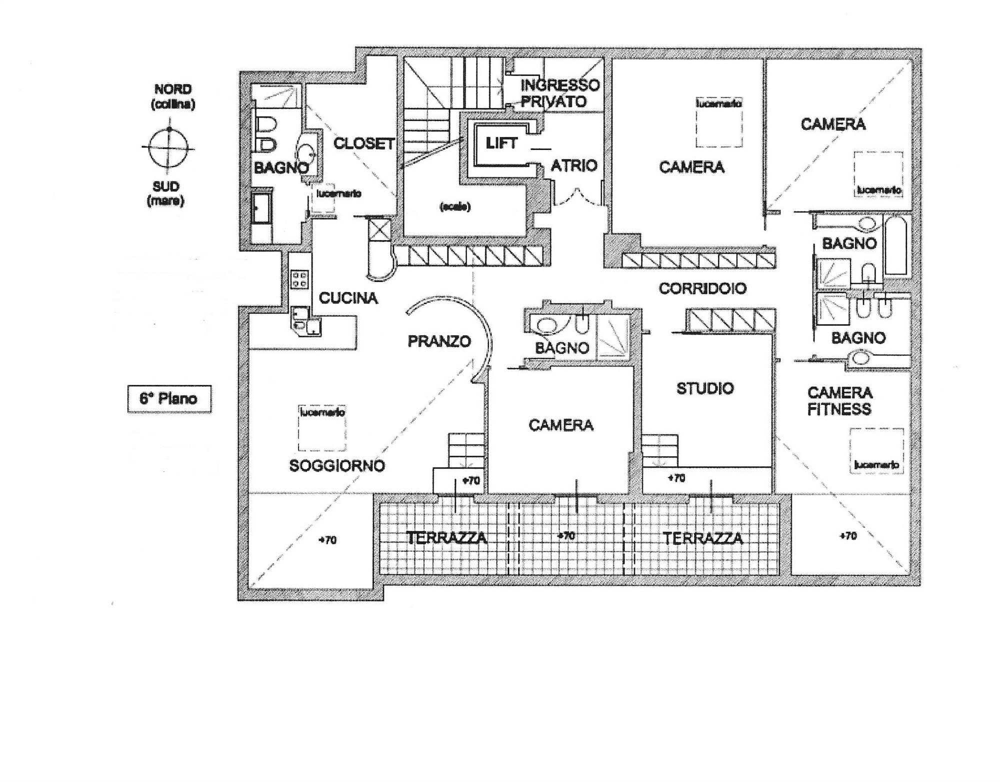
Located on the prestigious Via Romana, within an exclusive historic residence featuring concierge service and swimming pool, this remarkable 240 sqm penthouse with loft-style design offers the ultimate in elegance and comfort.

A private lift opens directly into the home, where a spacious double living room with dining area and designer open-plan kitchen flows seamlessly onto a panoramic terrace boasting breathtaking sea views. The property features 5 bedrooms (two of which are currently configured as a study and private gym), 4 stylish bathrooms, a laundry room, built-in corridor storage, and bespoke wardrobes and walk-in closets in the bedrooms.
Finished to the highest standards, this residence combines timeless charm with contemporary luxury.
Completing the property are two private garages (16 sqm each) and a cellar (8 sqm).
Primal Features
Code:
V000521
City:
Bordighera (via Romana)
Category:
Attic
Locals:
7
Bedrooms:
5
Bathrooms:
4
Sqm:
240
Garages:
2
Sqm garage:
32
Terraces:
1
sqm Terrace:
12
Floor:
6
Energetic class:
C
Property Conditions:
Good
Rank:
Elegant
View:
Sea View
Orientation:
South North
Garden:
Common
Furniture:
Possibility
Type living:
Double
Kitchen:
View Kitchen
Heating:
Independent
Type of heating system:
Air heating
Hot Water:
Independent
Cooling:
Centralized
Fixtures:
Wooden double glazed
Doors:
Excellent
Blind:
Wood Blinds
Floors Living Room:
Marble
Floors Bedrooms:
Parquet
Floors Kitchen:
Marble
Floors Bathroom:
Marble
Access for disabled:
No barrier
Accessories
Alarm
Air Conditioning
Cupboard
Elevator
Handicap Bathroom
Electric gate
Double Glazing
Laundry
Park Condominium
Swimming Pool
Armored door
Caretaker / Guardian
Closet
Awnings
Video Intercom
Mosquito Net
Map
via Romana, 40 - Bordighera (IM)
Video
Floorplans
Information request
Send
Cookie preference