Terrain à bâtir dans vente à Vallebona

Dans vente
Terrain à bâtir
Vallebona
75 000 €
Principales caractéristiques
Code:
V000214
Ville:
Vallebona
Catégorie:
Terrain à bâtir
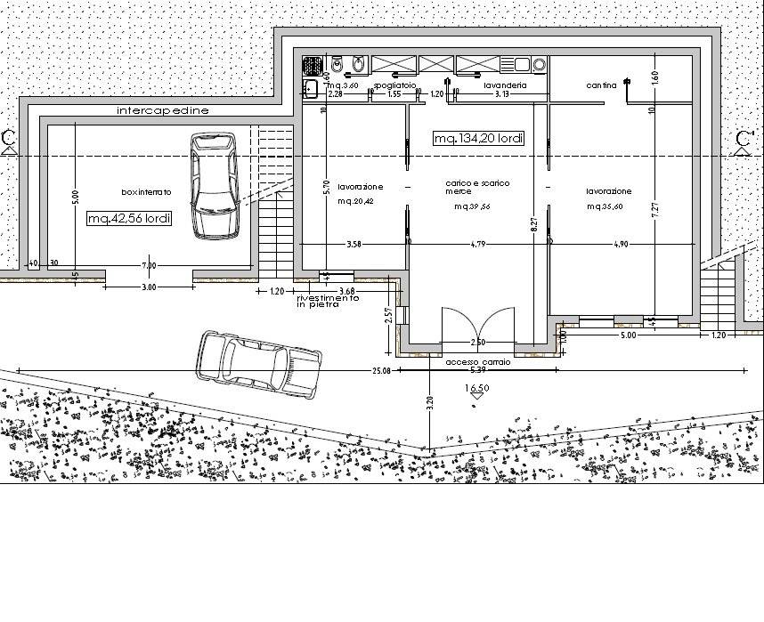
Mq:
250
Mq Box:
42,5
Mq jardin:
3000
Note de l'énergie:
Pas applicable
Degré:
Moyen
Position:
Colline
Panorama:
Vue Mer
Charges Urbanisation:
Non
Carte
località terra massatorta - Vallebona (IM)
Demande d'information
Envoyer
Cookie preference