Dolceacqua

In vendita
3 locali
Dolceacqua
198.000 €
Descrizione
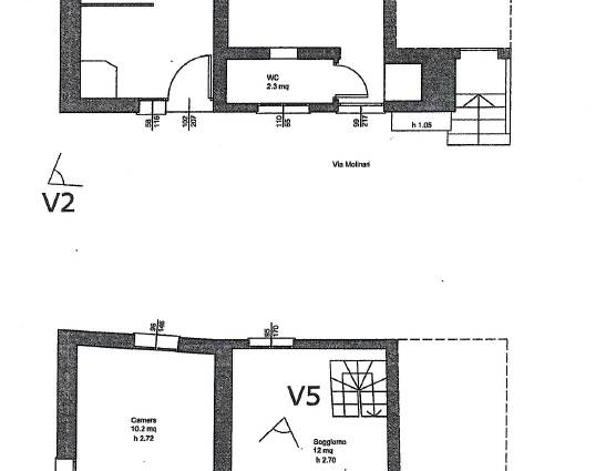
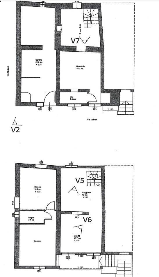
Casa indipendente da terra a cielo libera su 3 lati disposta su 2 livelli di 50 mq a piano.
Attualmente la proprietà è composta da un bilocale con ingresso al 1° piano con un soggiorno e cucina e una camera con bagno e cabina armadi al piano terra con un altro bilocale da ristrutturare e unire al bilocale esistente e una grande cantina/tavernetta.
Nessuna spesa condominiale
Caratteristiche principali
Codice:
V000476
Città:
Dolceacqua
Categoria:
3 locali
Locali:
4
Mq:
100
Classe energetica:
G
44109
Mappa
via Molinari, 20 - 22 - Dolceacqua (IM)
Richiedi informazioni
Invia
Cookie preference